PRAVILNIK O USLOVIMA KOJE MORA DA ISPUNJAVA PRIVREDNO DRUŠTVO, ODNOSNO OGRANAK PRIVREDNOG DRUŠTVA ILI SREDNJA STRUČNA ŠKOLA KOJI VRŠE OSPOSOBLJAVANJE KANDIDATA ZA VOZAČE("Sl. glasnik RS", br. 93/2013, 116/2013, 108/2014, 127/2014 - ispr., 36/2015, 51/2015, 86/2015, 104/2015, 77/2016, 63/2017, 112/2017 i 70/2018) |
Ovim pravilnikom propisuju se uslovi koje mora da ispunjava privredno društvo, odnosno ogranak privrednog društva ili srednja stručna škola (u daljem tekstu: pravno lice) koji vrše osposobljavanje kandidata za vozače (u daljem tekstu: kandidat) i način označavanja vozila kojima se vrši osposobljavanje kandidata.
II USLOVI KOJE MORA DA ISPUNJAVA PRAVNO LICE KOJE VRŠI OSPOSOBLJAVANJE KANDIDATA ZA VOZAČE
Pravno lice koje vrši osposobljavanje kandidata mora da ispunjava uslove u pogledu:
1) prostora za teorijsku obuku, polaganje teorijskog ispita i administrativne poslove, kao i sredstava, učila i opreme za osposobljavanje kandidata;
2) vozila za praktičnu obuku i polaganje praktičnog ispita;
3) uređenog poligona za praktičnu obuku (u daljem tekstu: poligon);
4) kadrova potrebnih za obavljanje poslova teorijske i praktične obuke i polaganja vozačkih ispita.
Podatke o uslovima iz stava 1. ovog člana, kao i svaku promenu tih podataka, pravno lice dostavlja, u elektronskom obliku, u centralnu bazu podataka Informacionog sistema osposobljavanja kandidata za vozače (u daljem tekstu: ISO).
1. Prostori za teorijsku obuku, polaganje teorijskog ispita i administrativne poslove, kao i sredstva, učila i oprema za osposobljavanje kandidata
Pravno lice mora imati prostor koji obuhvata:
1) učionicu za teorijsku obuku, odnosno polaganje teorijskog ispita, (u daljem tekstu: učionica), sa propisanim sredstvima, učilima i opremom za osposobljavanje;
2) prostoriju za administrativne poslove;
3) najmanje jedan toalet.
Prostor iz stava 1. ovog člana ne može biti deo ugostiteljskog prostora ni prostora u kojem se organizuju igre na sreću, odnosno ne može biti neposredno povezan sa navedenim prostorima.
Prostor iz stava 1. ovog člana mora biti poslovni prostor koji je kao takav evidentiran.
Prostorije iz stava 1. tač. 1) i 3) moraju biti u sastavu istog građevinskog objekta.
Ako pravno lice ima više učionica, najmanje jedna učionica mora biti namenjena za polaganje teorijskog ispita.
Površina učionice mora iznositi najmanje 25 m2 i biti oblika koji omogućava frontalno, grupno i individualno izvođenje teorijske obuke, odnosno individualno polaganje teorijskog ispita.
Radna površina po kandidatu mora biti najmanje 1,5 m2.
Radna površina za predavača mora biti najmanje 8 m2.
Visina učionice mora biti najmanje 2,4 m na površini iz stava 1. ovog člana, a visina učionice na preostaloj površini mora biti najmanje 2,1 m.
Učionica i prostorija za administrativne poslove moraju biti tehnički obezbeđene u pogledu zaštite od provale.
Prostorija za administrativne poslove mora imati površinu od najmanje 8 m2.
Visina prostorije za administrativne poslove mora biti najmanje 2,1 m.
U prostoriji za administrativne poslove mora postojati odgovarajući prostor za odlaganje i čuvanje propisanih evidencija i pečata.
Na ulazu u prostoriju za administrativne poslove, odnosno u učionicu, se ističe naziv pravnog lica sa upisanim podatkom o radnom vremenu.
U učionici mora postojati školska tabla, ili drugo sredstvo za prikazivanje teksta i crteža, površine najmanje 1,5 m2.
U učionici moraju biti radni stolovi ili školske klupe, sa stolicama sa naslonom, čiji raspored kandidatima, odnosno predavačima i ispitivačima omogućava nesmetan pristup.
Učionica mora biti osvetljena prirodnom, odnosno veštačkom svetlošću, čiji intenzitet i položaj izvora svetlosti omogućava da svi kandidati, bez obzira na položaj njihovog mesta u učionici, mogu pratiti izvođenje teorijske obuke, odnosno polagati teorijski ispit.
Za unos podataka u centralnu bazu ISO pravno lice mora obezbediti najmanje:
1) jedan računar koji se nalazi u učionici i koji je namenjen za unos podataka o teorijskoj obuci i vođenju teorijskog ispita (računar za teorijsku obuku),
2) tri računara koji se nalaze u učionici i koji su namenjeni za polaganje teorijskog ispita (računari za teorijski ispit),
3) jedan računar koji se nalazi u prostoriji za administrativne poslove i koji je namenjen za unos ostalih podataka iz propisanih evidencija (administrativni računar),
4) jedan računar za određivanje ispitnog zadatka i evidentiranje podataka o sprovedenom praktičnom ispitu (računar za praktični ispit).
Kada pravno lice ima više učionica, u učionicama koje su namenjene samo za teorijsku obuku mora postojati računar za teorijsku obuku.
Jedan računar može biti korišćen kao računar za teorijsku obuku, administrativni računar i računar za praktični ispit, a računari za teorijski ispit, u smislu osposobljavanja kandidata za vozače, ne mogu imati drugu namenu.
Računari iz st. 1. i 2. ovog člana moraju biti sa stalnom internet vezom sa statičkom IP adresom i pravno lice mora posedovati dokument sa podacima o statičkoj IP adresi. Izuzetno, internet veza računara za praktični ispit ne mora biti sa statičkom IP adresom.
Za obezbeđenje projektovanog i bezbednog pristupa ISO, lica koja će unositi podatke putem administrativnog računara, odgovorno lice u pravnom licu, predavači, instruktori vožnje i ispitivači, moraju imati ličnu kartu koja sadrži mikrokontroler (čip) u koji je upisan kvalifikovani elektronski sertifikat imaoca i odgovarajući podaci za formiranje kvalifikovanog elektronskog potpisa (u daljem tekstu: elektronska lična karta) ili drugi kvalifikovani elektronski sertifikat.
Program koji omogućava dostavu propisanih podataka od strane pravnog lica u ISO, obezbeđuje Ministarstvo unutrašnjih poslova.
Pravno lice mora imati elektronsku adresu (e-mail).
Bliži uslovi za računare iz stava 1. ovog člana u pogledu preporučene minimalne konfiguracije, operativnog sistema i brzine internet veze, dati su u Prilogu 3. koji je odštampan uz ovaj pravilnik i čini njegov sastavni deo.
Za osposobljavanje kandidata pravno lice mora da ima i koristi, u elektronskom ili pisanom obliku, najmanje:
1) Zakon o bezbednosti saobraćaja na putevima i podzakonska akta doneta na osnovu ovog zakona koji su od značaja za uspešno vršenje osposobljavanja kandidata, odnosno druge propise koji su od značaja za bezbedno upravljanje vozilom u saobraćaju;
2) nastavna sredstva koja služe za prikaz: ponašanja i postupanja učesnika u saobraćaju, tehnike vožnje, procesa kočenja, uređaja na vozilu koji su od posebnog značaja za bezbednost saobraćaja, saobraćajne signalizacije, elemenata puta i sl.;
3) plan teorijske obuke i plan realizacije svakog pojedinačnog časa;
4) ispitna pitanja za teorijski ispit koja su određena od strane Ministarstva unutrašnjih poslova;
5) plan praktične obuke;
6) plan sprovođenja praktičnog ispita;
7) stručnu literaturu iz oblasti osposobljavanja kandidata za vozače čije objavljivanje organizuje i obezbeđuje Agencija za bezbednost saobraćaja, u smislu člana 9. stav 2. tačka 15) Zakona o bezbednosti saobraćaja na putevima.
U učionici mora postojati ispravan sistem za audio-video snimanje (u daljem tekstu: audio-video sistem) koji, saglasno karakteristikama prostora u kojem je postavljen, mora da obezbedi audio-video zapis koji omogućava identifikaciju svih kandidata i ispitivača celim tokom teorijskog ispita i registrovanje njihove međusobne komunikacije.
Audio-video sistem mora imati monitor putem kojeg ispitivači, mogu videti trenutni video sadržaj koji beleže kamere i indikator koji daje informaciju o uključenosti uređaja za snimanje.
Audio-video zapis mora posedovati odgovarajuću zaštitu putem koje se utvrđuje da li su vršene promene u originalnom sadržaju tog zapisa.
Minimalni uslovi koje moraju da ispune elementi audio-video sistema dati su u Prilogu 3. koji je odštampan uz ovaj pravilnik i čini njegov sastavni deo.
2. Vozila za osposobljavanje kandidata
Osposobljavanje kandidata vrši se na:
1) mopedu - za vozača motornih vozila kategorije AM;
2) motociklu bez bočne prikolice, koji pripada vozilima kategorije A1, sa motorom radne zapremine od najmanje 120 cm3, najveće konstruktivne brzine od najmanje 90 km/h - za vozača motornih vozila kategorije A1;
3) motociklu bez bočne prikolice, koji pripada vozilima kategorije A2, sa motorom radne zapremine od najmanje 400 cm3 i efektivne, odnosno trajno nominalne snage, od najmanje 25 kW - za vozača motornih vozila kategorije A2;
4) motociklu bez bočne prikolice, koji pripada vozilima kategorije A, sa motorom radne zapremine od najmanje 600 cm3 i efektivne, odnosno trajno nominalne snage, od najmanje 40 kW - za vozača motornih vozila kategorije A;
5) teškom četvorociklu, najveće konstruktivne brzine od najmanje 60 km/h - za vozača motornih vozila kategorije B1;
6) motornom vozilu kategorije B, sa četiri točka, sa ugrađenim tahografom, sa protivblokirajućim sistemom (ABS) radnog kočenja, sa najmanje četiri sedišta, najveće konstruktivne brzine od najmanje 100 km/h, sa dva spoljna vozačka ogledala (sa obe strane vozila), i koje ima uređaj za davanje zvučnih i optičkih signala koji se aktivira pri upotrebi duplih nožnih komandi - za vozača motornih vozila kategorije B;
7) skupu vozila koji sačinjavaju motorno vozilo kategorije B, koje ispunjava uslov iz tačke 6) ovog stava i priključno vozilo najveće dozvoljene mase od najmanje 1000 kg, koje ima zatvoren tovarni sanduk (stalna nadgradnja ili privremena - "cerada") čija je širina najmanje ista kao širina motornog vozila, pri čemu je visina priključnog vozila (sa tovarnim sandukom sa nadgradnjom) najmanje ista kao visina motornog vozila, a najveća konstruktivna brzina skupa je najmanje 100 km/h - za vozača vozila kategorije BE;
8) motornom vozilu kategorije C1, sa protivblokirajućim sistemom (ABS) radnog kočenja, čija je najveća dozvoljena masa najmanje 4000 kg, čija je dužina najmanje 5,0 m, najveća konstruktivna brzina je najmanje 80 km/h i koje ima zatvoreni tovarni sanduk (stalna nadgradnja ili privremena - "cerada") čija je širina najmanje ista kao širina kabine, pri čemu je najviša tačka tovarnog sanduka najmanje na istoj visini kao najviša tačka kabine - za vozača motornih vozila kategorije C1;
9) skupu vozila koji sačinjavaju motorno vozilo kategorije C1, sa protivblokirajućim sistemom (ABS) radnog kočenja i priključno vozilo čija je najveća dozvoljena masa najmanje 1250 kg, koje ima zatvoreni tovarni sanduk (stalna nadgradnja ili privremena - "cerada") čija je širina najmanje ista kao širina kabine vozila i pri čemu je najviša tačka tovarnog sanduka najmanje na istoj visini kao najviša tačka kabine motornog vozila, a skup vozila ima dužinu od najmanje 8,0 m i najveću konstruktivnu brzinu od najmanje 80 km/h - za vozača vozila kategorije C1E;
10) motornom vozilu kategorije C, sa protivblokirajućim sistemom (ABS) radnog kočenja, čija je najveća dozvoljena masa najmanje 12000 kg, dužina najmanje 8,0 m, širina najmanje 2,40 m, najveća konstruktivna brzina najmanje 80 km/h i koje ima zatvoreni tovarni sanduk (stalna nadgradnja ili privremena - "cerada") čija je širina najmanje ista kao širina kabine, pri čemu je najviša tačka tovarnog sanduka najmanje na istoj visini kao najviša tačka kabine - za vozača motornih vozila kategorije C;
11) skupu vozila koji sačinjavaju motorno vozilo kategorije C čija najveća dozvoljena masa prelazi 7500 kg, sa protivblokirajućim sistemom (ABS) radnog kočenja i priključno vozilo čija je dužina najmanje 7,5 m, koje ima zatvoreni tovarni sanduk (stalna nadgradnja ili privremena - "cerada") čija je širina najmanje ista kao širina kabine vozila i pri čemu je najviša tačka tovarnog sanduka najmanje na istoj visini kao najviša tačka kabine motornog vozila, a skup vozila ima najveću dozvoljenu masu od najmanje 20000 kg, dužinu od najmanje 14,0 m, širinu od najmanje 2,40 m i najveću konstruktivnu brzinu od najmanje 80 km/h - za vozača vozila kategorije CE;
12) motornom vozilu kategorije D1, sa protivblokirajućim sistemom (ABS) radnog kočenja, čija je najveća dozvoljena masa najmanje 4000 kg, dužina najmanje 5,0 m i najveća konstruktivna brzina najmanje 80 km/h - za vozila kategorije D1;
13) skupu vozila koje sačinjavaju motorno vozilo kategorije D1, koje ispunjava uslov iz tačke 12) ovog stava i priključno vozilo čija je najveća dozvoljena masa najmanje 1250 kg, koje ima zatvoreni tovarni sanduk (stalna nadgradnja ili privremena - "cerada") širine i visine (najveće unutrašnje dimenzije tovarnog prostora) najmanje 2,0 m, a najveća konstruktivna brzina skupa je najmanje 80 km/h - za vozača vozila kategorije D1E;
14) motornom vozilu kategorije D, sa protivblokirajućim sistemom (ABS) radnog kočenja, čija je dužina najmanje 10,0 m, širina najmanje 2,40 m i čija je najveća konstruktivna brzina najmanje 80 km/h - za vozača motornih vozila kategorije D;
15) skupu vozila koje sačinjavaju motorno vozilo kategorije D, koje ispunjava uslov iz tačke 14) ovog stava, i priključno vozilo čija je najveća dozvoljena masa najmanje 1250 kg, širina najmanje 2,40 m, koje ima zatvoreni tovarni sanduk (stalna nadgradnja ili privremena - "cerada") širine i visine (najveće unutrašnje dimenzije tovarnog prostora) najmanje 2,0 m, a najveća konstruktivna brzina skupa je najmanje 80 km/h - za vozača vozila kategorije DE;
16) skupu vozila koji sačinjavaju traktor i priključno vozilo za traktor nosivosti najmanje 3000 kg - za vozača motornih vozila kategorije F;
17) motokultivatoru - za vozače motornih vozila kategorije M.
Vozilo za osposobljavanje kandidata (u daljem tekstu: vozilo) ne može biti pojedinačno proizvedeno, odnosno prepravljeno osim u slučaju ugradnje: duplih komandi, uređaja za davanje zvučnih i optičkih signala koji se mora aktivirati pri svakoj upotrebi tih komandi, pogona na alternativna pogonska goriva, uređaja za spajanje vučnog i priključnog vozila, propisanih svetlosno signalnih uređaja za to vozilo i prepravki u skladu sa potrebama osoba sa invaliditetom, odnosno može biti izvršena prepravka vozila kojom se prepravljeno vozilo vraća u stanje u kojem je proizvedeno ili kojom se teretno vozilo prepravlja u putničko vozilo, pod uslovom da je izvršeno ispitivanje i izdato uverenje da vozilo ispunjava propisane uslove.
Vozilo kategorije B mora imati:
1) ugrađene duple nožne komande, osim komande za ubrzavanje,
2) uređaj za davanje zvučnih i optičkih signala koji se mora aktivirati pri svakoj upotrebi tih komandi,
3) dodatno unutrašnje vozačko ogledalo i najmanje jedno dodatno spoljnje ogledalo, koja omogućavaju instruktoru vožnje, odnosno ispitivaču, osmatranje puta i saobraćaja iza vozila.
Motorno vozilo kategorije C1, C, D1 i D, može biti prepravljeno ugradnjom mesta za sedenje, za instruktora vožnje, odnosno ispitivača, pod uslovom da je izvršeno ispitivanje i izdato uverenje da vozilo ispunjava propisane uslove. Ako su na ovim vozilima ugrađene duple komande, mesto za sedenje za instruktora vožnje, odnosno ispitivača, mora obezbediti mogućnost nesmetanog delovanja na ove komande i normalnu preglednost puta i saobraćaja ispred i iza vozila. Ako, umesto duplih komandi, navedena vozila imaju samo pomoćnu-parkirnu kočnicu položaj njene komande mora biti takav da je instruktor vožnje, odnosno ispitivač, može aktivirati sa mesta na kojem sedi, bez ustajanja i bitne promene položaja tela.
Vrednosti iz stava 1. tač. 2)-4) i tač. 7)-16) ovog člana, koje se odnose na radnu zapreminu, mase i dimenzije vozila, odnosno skupa vozila, mogu biti umanjene za najviše 5%, pod uslovom da ta tolerancija ne utiče na promenu kategorije vozila.
Vozila kategorije BE, C1, C1E, C, CE, D1, D1E, D i DE moraju imati najmanje po jedno dodatno spoljnje vozačko ogledalo sa leve i desne strane, koja omogućavaju instruktoru vožnje, odnosno ispitivaču, osmatranje puta i saobraćaja iza vozila, kada spoljna vozačka ogledala to ne omogućavaju.
Ugradnja tahografa u vozilo, kao i ugradnja dodatnih vozačkih ogledala ne smatra se prepravkom vozila. Vozilo sa ugrađenim duplim nožnim komandama, za koje je izdato uverenje o ispitivanju ugradnje duplih nožnih komandi, nakon ugradnje uređaja za davanje zvučnih i optičkih signala koji se aktivira pri upotrebi tih komandi ne podleže ispitivanju.
Smatra se da pravno lice ima propisan broj vozila ako vozilima nije istekla važnost registracione nalepnice ili potvrde o tehničkoj ispravnosti vozila, duže od 30 dana, ako nisu data u zakup drugom licu, ako su tehnički ispravna, ako za njih postoji propisana dokumentacija kojom se dokazuje da su izvršena ispitivanja i izdata uverenja o ispitivanju vozila i potvrda o periodičnoj kontroli uređaja i opreme na gas.
Izuzetno, odredbe st. 3, 4. i 6. ovog člana se ne primenjuju na vozilo, na kojem se vrši osposobljavanje kandidata za vozača koji je osoba sa invaliditetom i koje nije vlasništvo pravnog lica.
Pravno lice koje vrši osposobljavanje kandidata mora imati poligon koji omogućava izvođenje početne praktične obuke, odnosno propisanih poligonskih radnji, u vlasništvu pravnog lica ili uzet u zakup.
Izuzetno od stava 1. ovog člana, pravno lice ne mora imati poligon za izvođenje početne praktične obuke, odnosno poligonskih radnji, prilikom osposobljavanja kandidata za vozače:
1) vozila kategorija BE, C1E, CE, D1E, DE, F i M, već se izvođenje početne praktične obuke i poligonskih radnji može sprovoditi na drugom prostoru, odnosno na putu sa slabim intenzitetom saobraćaja, za koje postoji saglasnost vlasnika, odnosno korisnika prostora, odnosno upravljača puta;
2) motornih vozila kategorija D1 i D, već se izvođenje početne praktične obuke i poligonskih radnji može sprovoditi na drugom prostoru, odnosno prostoru na autobuskoj stanici, odnosno autobuskom stajalištu za koje postoji saglasnost vlasnika, odnosno korisnika prostora, odnosno upravljača puta.
Poligon, odnosno drugi prostor kada se na njemu obavlja obuka ili polaganje praktičnog ispita, je nekategorisani put, odnosno deo nekategorisanog puta namenjen za početnu praktičnu obuku kandidata, izvođenje poligonskih radnji i polaganje praktičnog ispita.
Poligon, odnosno prostori na kojem se izvode poligonske radnje, mora biti:
1) izgrađen sa kolovoznim zastorom od asfalta, betona ili drugog materijala koji obezbeđuje najmanje kvalitet koji imaju podloge od asfalta i betona,
2) ravan (bez bitnih oštećenja kolovoznog zastora) i bez nanosa materijala koji menjaju kvalitet podloge,
3) izveden i obezbeđen na način kojim će se sprečavati posledice grešaka kandidata pri izvođenju poligonskih radnji.
Drugi prostor, put sa slabim intenzitetom saobraćaja, autobuska stanica, odnosno autobusko stajalište, iz stava 2. ovog člana, mora ispunjavati uslove iz stava 4. ovog člana.
Prilazni put koji povezuje javni put i poligon mora biti izgrađen od savremenog kolovoznog zastora (od asfalta, betona, kocke ili drugog materijala koji obezbeđuje najmanje kvalitet koji imaju podloge od asfalta, betona ili kocke), i imati saobraćajne trake čija je širina najmanje 2,00 m. Ukoliko je poligon namenjen isključivo za obuku kandidata za vozača vozila kategorija AM, A1, A2 i A, širina saobraćajne trake je najmanje 1,50 m.
Javni put na koji se priključuje poligon mora biti od savremenog kolovoznog zastora.
Ukoliko se poligon na kojem pravno lice sprovodi obuku nalazi u naseljenom mestu koje ne ispunjava uslove za sprovođenje praktičnog ispita, a zbog udaljenosti tih naseljenih mesta nije moguće sačiniti ispitne zadatke za ispit u celini, pravno lice mora obezbediti i poligon u naseljenom mestu koje ispunjava propisane uslove za sprovođenje praktičnog ispita.
U slučaju iz stava 2. tačka 1) ovog člana, kada je upravljač puta dao saglasnost pravnom licu da poligonske radnje izvodi na delu puta sa slabim intenzitetom saobraćaja, na tom delu puta mora, u skladu sa odredbom člana 158. stav 3. Zakona o bezbednosti saobraćaja na putevima, biti postavljena saobraćajna signalizacija, koja zabranjuje saobraćaj ostalih vozila za vreme osposobljavanja kandidata za vozače. Ovaj deo puta za vreme osposobljavanja, u cilju onemogućavanja korišćenja prostora od strane drugih korisnika, mora biti obezbeđen i opremom koja se koristi za obeležavanje prepreka na putu i mesta na kome se izvode radovi na putu.
Na poligonu moraju postojati saobraćajni znakovi kojima se zabranjuje saobraćaj za sva vozila, osim za vozila kojima se vrši praktična obuka kandidata, polaganje praktičnog ispita i vozila organa koji vrši nadzor.
Ukoliko se poligon koristi i u druge svrhe saobraćajnim znakovima iz stava 1. ovog člana mora biti pridodata dopunska tabla na kojoj su određeni vremenski periodi po danima kada se na poligonu vrši isključivo osposobljavanje.
Prostori za izvođenje svih propisanih poligonskih radnji na poligonu moraju biti obeleženi oznakama na kolovozu, u zavisnosti od kategorije vozila za koju se vrši praktična obuka i polaganje praktičnog ispita. Oznake prostora za izvođenje propisanih poligonskih radnji se izvode belom bojom i moraju biti jasno uočljive.
Prostori za izvođenje propisanih poligonskih radnji na drugom prostoru, moraju biti propisanih dimenzija i obeleženi oznakama na kolovozu, u skladu sa odredbama ovog pravilnika. Prostori za izvođenje propisanih poligonskih radnji na putu sa slabim intenzitetom saobraćaja, odnosno autobuskoj stanici, odnosno autobuskom stajalištu, moraju biti propisanih dimenzija i mogu biti označeni samo saobraćajnim kupama na način određen ovim pravilnikom.
Širina oznaka na podlozi iznosi 0,10 m, a dužina neisprekidanog dela, odnosno prekida, isprekidanih linija iznosi 1,0 m. Širina oznaka na podlozi koje određuju granice prostora za izvođenje određene radnje ulazi u dimenzije prostora za izvođenje te radnje, a u slučaju razdelnih linija polovina širine oznake ulazi u širinu svake saobraćajne trake.
Ukoliko kolovozne, odnosno saobraćajne trake, ispunjavaju uslove koji su propisani za prostore za izvođenje određenih propisanih poligonskih radnji na njima se mogu izvoditi te radnje.
Kada se na poligonu prostori za izvođenje propisanih poligonskih radnji preklapaju, oznake kojima su obeleženi ovi prostori moraju biti izvedene različitim bojama, na delu prostora gde se oznake ne poklapaju. U slučaju preklapanja tih prostora, odnosno poklapanja oznaka, belom bojom se uvek izvode oznake prostora za izvođenje propisanih poligonskih radnji motornim vozilima kategorije B1 i B.
Preklapanje prostora za izvođenje propisanih poligonskih radnji vozilima ne sme imati negativan uticaj na izvođenje, odnosno ocenjivanje izvođenja tih radnji.
Prostor na poligonu, za praktičnu obuku kandidata za vozače motornih vozila kategorija AM, A1, A2 i A, mora biti takvih dimenzija i oblika da se na njemu mogu oznakama na kolovozu odrediti prostori za izvođenje sledećih poligonskih radnji:
1) vožnja po pravcu i zaustavljanje;
2) "slalom" vožnja;
3) vožnja putanjom u obliku broja "8";
4) kočenje i zaustavljanje.
Prostor na poligonu, za praktičnu obuku kandidata za vozače motornih vozila kategorija B1 i B, mora biti takvih dimenzija i oblika da se na njemu mogu oznakama na kolovozu odrediti prostori za izvođenje sledećih poligonskih radnji:
1) vožnja napred sa promenom stepena prenosa i unazad sa promenom saobraćajne trake;
2) parkiranje vozila podužno, vožnjom unazad;
3) parkiranje vozila pod pravim uglom, vožnjom unazad;
4) polukružno okretanje vozila sa najviše tri potpuna manevra na prostoru širine dve saobraćajne trake;
5) zaustavljanje i polazak vozilom na putu sa usponom;
6) kočenje i zaustavljanje.
Na prostoru za izvođenje poligonskih radnji iz stava 1. tač. 2) i 3) ovog člana, ne mogu se preklapati oznake za parking mesta.
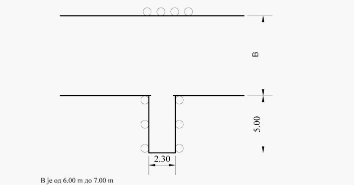
Prostor na poligonu, za praktičnu obuku kandidata za vozače vozila kategorije BE, mora biti takvih dimenzija i oblika da se na njemu mogu oznakama na kolovozu odrediti prostori za izvođenje sledećih poligonskih radnji:
1) odvajanje i spajanje vučnog i priključnog vozila;
2) vožnja napred sa promenom stepena prenosa i unazad u istoj saobraćajnoj traci;
3) vožnja unazad sa skretanjem ulevo, odnosno udesno, pod pravim uglom.
Prostor na poligonu, za praktičnu obuku kandidata za vozače motornih vozila kategorija C1 i C, mora biti takvih dimenzija i oblika da se na njemu mogu oznakama na kolovozu odrediti prostori za izvođenje sledećih poligonskih radnji:
1) vožnja napred sa promenom stepena prenosa i unazad sa promenom saobraćajne trake;
2) parkiranje vozila pod pravim uglom, vožnjom unazad, zbog utovara - istovara.
Prostor na poligonu, za praktičnu obuku kandidata za vozače vozila kategorija C1E i CE, mora biti takvih dimenzija i oblika da se na njemu mogu oznakama na kolovozu odrediti prostori za izvođenje sledećih poligonskih radnji:
1) odvajanje i spajanje vučnog i priključnog vozila;
2) vožnja napred sa promenom stepena prenosa i unazad u istoj saobraćajnoj traci;
3) vožnja unazad sa skretanjem ulevo, odnosno udesno, pod pravim uglom.
Prostor na poligonu, za praktičnu obuku kandidata za vozače motornih vozila kategorija D1 i D, mora biti takvih dimenzija i oblika da se na njemu mogu oznakama na kolovozu odrediti prostori za izvođenje sledećih poligonskih radnji:
1) zaustavljanje vozila na peronu, radi izlaska i ulaska putnika i polazak sa perona;
2) zaustavljanje vozila na autobuskom stajalištu, radi izlaska i ulaska putnika i polazak sa autobuskog stajališta.
Na prostoru za izvođenje poligonskih radnji iz stava 1. ovog člana, ne mogu se preklapati oznaka za peron i oznaka za autobusko stajalište.
Prostor na poligonu, za praktičnu obuku kandidata za vozače vozila kategorija D1E i DE, mora biti takvih dimenzija i oblika da se na njemu mogu oznakama na kolovozu odrediti prostori za izvođenje sledećih poligonskih radnji:
1) odvajanje i spajanje vučnog i priključnog vozila;
2) vožnja napred sa promenom stepena prenosa i unazad u istoj saobraćajnoj traci;
3) vožnja unazad sa skretanjem ulevo, odnosno udesno, pod pravim uglom.
Prostor na poligonu, za praktičnu obuku kandidata za vozače vozila kategorije F, mora biti takvih dimenzija i oblika da se na njemu mogu oznakama na kolovozu odrediti prostori za izvođenje sledećih poligonskih radnji:
1) odvajanje i spajanje vučnog i priključnog vozila;
2) vožnja napred sa promenom stepena prenosa i unazad u istoj saobraćajnoj traci;
3) vožnja unazad sa skretanjem ulevo, odnosno udesno, pod pravim uglom.
Prostor na poligonu, za praktičnu obuku kandidata za vozače motornih vozila kategorije M, mora biti takvih dimenzija i oblika da se na njemu mogu oznakama na kolovozu odrediti prostori za izvođenje sledećih poligonskih radnji:
1) vožnja napred sa promenom stepena prenosa i unazad u istoj saobraćajnoj traci;
2) kočenje i zaustavljanje.
Za označavanje prostora za izvođenje propisanih radnji na poligonu, odnosno drugom prostoru pravno lice mora imati i koristiti potreban broj saobraćajnih kupa, visine najmanje 45 cm, u skladu sa grafičkim prikazom za svaku pojedinačnu radnju vozilom.
Grafički prikaz prostora za izvođenje poligonskih radnji utvrđenih u čl. 13-21. ovog pravilnika, sa dimenzijama i načinom označavanja, dat je na sl. 1-28, koje su sadržane u Prilogu 1. koji je odštampan uz ovaj pravilnik i čini njegov sastavni deo.
Na slikama datim u Prilogu 1. ovog pravilnika, oznaka za saobraćajnu kupu je krug, a krivine su određene poluprečnikom kružnog luka čija je vrednost određena na slici.
4. Kadrovi potrebni za obavljanje poslova teorijske i praktične obuke i polaganje vozačkih ispita
Instruktor vožnje mora biti u radnom odnosu, na određeno ili neodređeno vreme, sa punim radnim vremenom, u pravnom licu koje vrši osposobljavanje kandidata za vozače.
Pravno lice koje vrši osposobljavanje kandidata za vozače, dužno je da ima najmanje tri instruktora vožnje sa punim radnim vremenom. Svaki sledeći instruktor, može biti zaposlen sa nepunim radnim vremenom.
Ukoliko pravno lice vrši osposobljavanje kandidata za vozače vozila kategorije B dužno je da ima najmanje tri instruktora vožnje za kategoriju B sa punim radnim vremenom. Svaki sledeći instruktor, može biti zaposlen sa nepunim radnim vremenom.
Ukoliko pravno lice vrši osposobljavanje kandidata za vozače vozila ostalih kategorija dužno je da ima najmanje jednog instruktora vožnje, za svaku od tih kategorija vozila sa punim radnim vremenom. Svaki sledeći instruktor, može biti zaposlen sa nepunim radnim vremenom.
Pravno lice koje vrši osposobljavanje kandidata, dužno je da ima u radnom odnosu, na određeno ili neodređeno vreme, najmanje jednog predavača teorijske obuke.
Pravno lice koje vrši osposobljavanje kandidata, dužno je da ima u radnom odnosu, na određeno ili neodređeno vreme, najmanje jednog ispitivača za svaku od kategorija vozila za koje pravno lice vrši osposobljavanje.
Jedno lice, ukoliko ispunjava propisane uslove i ima odgovarajuće dozvole (licence), može u istom pravnom licu obavljati poslove instruktora vožnje, predavača teorijske obuke i ispitivača.
Instruktor vožnje, ispitivač i predavač, koji su u radnom odnosu u pravnom licu koje vrši osposobljavanje kandidata, moraju imati vozačku dozvolu čiji podaci su evidentirani u elektronsku evidenciju i odgovarajuću prijavu na obavezno socijalno osiguranje u tom pravnom licu, u skladu sa odgovarajućim propisima.
Pravno lice mora angažovati pravno ili fizičko lice koje će biti zaduženo za održavanje ISO i audio-video sistema na način koji će omogućiti njihove propisane funkcionalnosti.
III NAČIN OZNAČAVANJA VOZILA ZA PRAKTIČNU OBUKU KANDIDATA ZA VOZAČE
Vozilo mora biti označeno posebnim tablicama za označavanje (u daljem tekstu: "L" tablice) i natpisima.
"L" tablice su oblika kvadrata, plave boje i na njima je ispisana oznaka "L" bele boje i cela površina tablice mora biti od reflektujućeg materijala.
Na vozilu kategorije AM, A1, A2 i A postavlja se samo jedna "L" tablica na zadnjoj strani vozila, neposredno pored, ispod ili iznad registarske tablice, tako da bude uočljiva za ostale učesnike u saobraćaju.
Na vozilu kategorije B1, C1, C, D1, D i M postavljaju se po dve "L" tablice, jedna na levom delu prednje, a druga na levom delu zadnje, strane vozila, tako da budu uočljive za ostale učesnike u saobraćaju.
Na vozilima kategorija C1E, CE, D1E, DE i F postavlja se jedna "L" tablica na levom delu prednje strane vučnog vozila, a druga na levom delu zadnje strane priključnog vozila, tako da budu uočljive za ostale učesnike u saobraćaju.
"L" tablica na vozilima može biti postavljena i pomoću magnetne podloge.
Na vozilu kategorije B na krovu mora postojati tabla, svetleća ili sa površinama od reflektujućeg materijala, koja sadrži natpis "OBUKA VOZAČA" ispisan ćiriličnim pismom slovima crne boje na žutoj podlozi i dve oznake "L" bele boje, upisane u kvadrat plave boje, koje su izvedene sa leve i desne strane navedenog natpisa. Navedeni natpis i oznake moraju postojati na prednjoj i zadnjoj strani table.
Tabla iz stava 1. ovog člana mora biti postavljena upravno na podužnu ravan simetrije vozila, pri čemu natpis i oznake moraju biti uočljive za učesnike u saobraćaju koji dolaze u susret vozilu, odnosno koji se kreću iza ovog vozila.
Tabla može biti postavljena i pomoću magnetne podloge.
Prilikom obuke kandidata za vozača vozila kategorije BE, jedna "L" tablica se postavlja na levom delu zadnje strane priključnog vozila, tako da bude uočljiva za ostale učesnike u saobraćaju, a vučno vozilo je označeno na način određen odredbama st. 1. i 2. ovog člana.
Ukoliko je tabla iz stava 1. ovog člana svetleća ista mora svetleti kada se osposobljavanje izvodi u noćnim uslovima.
Izuzetno od odredbe stava 1. ovog člana, na vozilu kategorije B na kojem se vrši osposobljavanje kandidata za vozača koji je osoba sa invaliditetom i koje nije vlasništvo pravnog lica, umesto table mogu biti postavljene dve "L" tablice, na način propisan odredbom člana 26. stav 2. ovog pravilnika.
Na vozilu kategorije B na bočnim stranama mora biti natpis koji sadrži naziv pravnog lica, izveden na način da bude uočljiv za ostale učesnike u saobraćaju. Visina slova na natpisu mora biti najmanje 5 cm.
Pored natpisa, na bočnim stranama, može se nalaziti i logotip pravnog lica.
Pravno lice prilikom izvođenja praktične obuke i polaganja vozačkog ispita za kandidate za vozače motornih vozila kategorija AM, A1, A2 i A, odnosno B1 ukoliko vozilo nema kabinu, mora imati i koristiti dovoljan broj svetloodbojnih prsluka, iz člana 30. stav 2. Zakona o bezbednosti saobraćaja na putevima.
Na svetloodbojnom prsluku, na leđnoj strani, mora postojati oznaka u obliku kvadrata plave boje, sa upisanom oznakom "L" bele boje.
Izgled "L" tablice, table kojom se označava vozilo za praktičnu obuku kandidata kategorije B i oznake za označavanje prsluka za praktičnu obuku kandidata, sa njihovim dimenzijama, prikazani su na sl. 1-4, koje su sadržane u Prilogu 2. koji je odštampan uz ovaj pravilnik i čine njegov sastavni deo.
Odredbe člana 2. stav 2, člana 7, člana 9. st. 1-3. i člana 24. stav 9. ovog pravilnika primenjivaće se od 1. oktobra 2015. godine.
Izuzetno od stava 1. ovog člana, odredbe člana 2. stav 2, člana 7, člana 9. st. 1-3. i člana 24. stav 9. ovog pravilnika primenjivaće se na pravna lica koja učestvuju u procesu testiranja ISO i obuke za unos podataka u centralnu bazu ISO, koji traje od 25. aprila do 30. novembra 2015. godine.
Izuzetno od odredbi člana 10. stav 1. tač. 2), 3) i 10) ovog pravilnika, pravno lice, za osposobljavanje kandidata koji su započeli, odnosno koji do 25. oktobra 2014. godine započnu osposobljavanje, odnosno realizuju najmanje jedan čas teorijske obuke, može imati i koristiti za osposobljavanje kandidata za vozače motornih vozila kategorije:
1) A1, motocikl bez bočne prikolice, koji pripada vozilima kategorije A1,
2) A2, motocikl bez bočne prikolice, koji pripada vozilima kategorije A2, a ne pripada vozilima kategorije A1,
3) C, motorno vozilo kategorije C čija najveća dozvoljena masa prelazi 7500 kg, najveće konstruktivne brzine najmanje 80 km/h, i koje ima zatvoreni tovarni sanduk (stalna nadgradnja ili privremena - "cerada") čija je širina najmanje ista kao širina kabine, pri čemu je najviša tačka tovarnog sanduka najmanje na istoj visini kao najviša tačka kabine,
najkasnije do 25. aprila 2015. godine.
Izuzetno od odredbi člana 10. stav 1. tačka 6) ovog pravilnika, do 25. oktobra 2018. godine praktična obuka kandidata za vozača motornih vozila kategorije B vrši se na motornom vozilu kategorije B, sa četiri točka, sa najmanje četiri sedišta, najveće konstruktivne brzine od najmanje 100 km/h, sa dva spoljna vozačka ogledala (sa obe strane vozila).
Izuzetno od odredbe člana 10. stav 2. ovog pravilnika motorno vozilo kategorije B za osposobljavanje kandidata za vozače, koje je do 26. oktobra 2013. godine bilo registrovano na pravno lice koje je vršilo osposobljavanje kandidata na osnovu rešenja kojim se utvrđuje da su ispunjeni propisani uslovi za osposobljavanje kandidata za vozače, može biti prepravljeno vozilo, pod uslovom da je izvršeno ispitivanje i izdato uverenje da vozilo ispunjava propisane uslove.
Izuzetno od odredbi člana 10. stav 3. ovog pravilnika vozilo kategorije B do 25. oktobra 2015. godine:
1) može imati samo duplu nožnu komandu kočnog sistema,
2) ne mora imati uređaj za davanje zvučnih i optičkih signala koji se aktivira pri upotrebi duplih nožnih komandi,
3) ne mora imati dodatno unutrašnje vozačko ogledalo i najmanje jedno dodatno spoljnje ogledalo, koja omogućavaju instruktoru vožnje, odnosno ispitivaču, osmatranje puta i saobraćaja iza vozila.
Odredba člana 10. stav 6. ovog pravilnika primenjivaće se od 25. oktobra 2015. godine.
Izuzetno od odredbe člana 11. stav 1. ovog pravilnika, do 25. oktobra 2018. godine, pravno lice koje vrši osposobljavanje kandidata početnu praktičnu obuku, odnosno poligonske radnje u praktičnoj obuci i na praktičnom ispitu, može izvoditi i na prostoru koji je deo saobraćajne površine, koji omogućava izvođenje propisanih poligonskih radnji i koji je označen na propisan način, ako poseduje saglasnost upravljača puta. Ovaj prostor za vreme osposobljavanja, u cilju onemogućavanja korišćenja prostora od strane drugih korisnika, mora biti obezbeđen i opremom koja se koristi za obeležavanje prepreka na putu i mesta na kome se izvode radovi na putu.
Ukoliko poligon ne ispunjava uslove za izvođenje poligonske radnje "zaustavljanje i polazak vozilom na putu sa usponom", do 25. oktobra 2018. godine, za njeno izvođenje može se koristiti drugi prostor, odnosno put sa slabim intenzitetom saobraćaja koji omogućava izvođenje ove radnje. Drugi prostor, odnosno put sa slabim intenzitetom saobraćaja, pravno lice može koristiti ako poseduje saglasnosti vlasnika, odnosno korisnika prostora, odnosno upravljača puta.
Odredba člana 11. stav 4. tačka 3) ovog pravilnika primenjivaće se od 25. oktobra 2015. godine.
(Brisan)
Pravno lice koje vrši osposobljavanja kandidata, do 25. oktobra 2018. godine, može:
1) radnje iz člana 14. stav 1, člana 15. stav 1, člana 16. stav 1, člana 17. stav 1, člana 18. stav 1, člana 19. stav 1, člana 20. stav 1. i člana 21. stav 1. ovog pravilnika izvoditi na prostoru koji može biti smanjen u odnosu na prostor prikazan na sl. 5-17, 20-22. i 24-28. Priloga 1, tako da širina saobraćajne trake, odnosno širina dve saobraćajne trake, bude najmanje 3,00 m, odnosno najmanje 6,00 m;
2) radnje iz člana 15. stav 1. tačka 3) i člana 16. stav 1. tačka 2) ovog pravilnika izvoditi na prostoru koji može biti smanjen u odnosu na prostor prikazan na sl. 13. i 15. Priloga 1, tako da radijus krivine bude najmanje 5,00 m;
3) radnju iz člana 16. stav 1. tačka 2) ovog pravilnika izvoditi na prostoru koji može biti smanjen, u odnosu na prostor prikazan na slici 15. Priloga 1, tako da dužina zaustavnog polja označenog kupama, bude najmanje 2,00 m veća od dužine motornog vozila koje se koristi za osposobljavanje;
4) radnju iz člana 18. stav 1. tačka 1) ovog pravilnika izvoditi na prostoru koji može biti smanjen, u odnosu na prostor prikazan na slici 19. Priloga 1, tako da prostor gde se vozilo parkira omogućava parkiranje, na propisan način, vozila koje se koristi za osposobljavanje, a širina prostora namenjenog za manevrisanje prilikom ulaska i izlaska, smanjena u skladu sa manevarskim mogućnostima vozila i propisanim vršenjem radnje.
Postupci za dobijanje dozvole za osposobljavanje kandidata za vozače započeti do dana stupanja na snagu ovog pravilnika okončaće se po odredbama ovog pravilnika.
Danom stupanja na snagu ovog pravilnika prestaje da važi Pravilnik o uslovima koje mora da ispunjava privredno društvo, odnosno ogranak privrednog društva ili srednja stručna škola koji vrše osposobljavanje kandidata za vozače ("Službeni glasnik RS", broj 53/12).
Ovaj pravilnik stupa na snagu 26. oktobra 2013. godine, s tim što odredbe člana 10. stav 1. tač. 6), 7), 8), 9), 10), 11), 12) i 14), u pogledu protivblokirajućeg sistema (ABS) radnog kočenja primenjuju se po isteku pet godina od dana stupanja na snagu ovog pravilnika.
Samostalni član Pravilnika o izmeni i dopuni
Pravilnika o uslovima koje mora da ispunjava privredno društvo, odnosno ogranak privrednog društva ili srednja stručna škola koji vrše osposobljavanje kandidata za vozače
("Sl. glasnik RS", br. 116/2013)
Član 3
Ovaj pravilnik stupa na snagu osmog dana od dana objavljivanja u "Službenom glasniku Republike Srbije".
Samostalni član Pravilnika o izmenama i dopunama
Pravilnika o uslovima koje mora da ispunjava privredno društvo, odnosno ogranak privrednog društva ili srednja stručna škola koji vrše osposobljavanje kandidata za vozače
("Sl. glasnik RS", br. 108/2014)
Član 9
Ovaj pravilnik stupa na snagu narednog dana od dana objavljivanja u "Službenom glasniku Republike Srbije".
Samostalni član Pravilnika o izmenama
Pravilnika o uslovima koje mora da ispunjava privredno društvo, odnosno ogranak privrednog društva ili srednja stručna škola koji vrše osposobljavanje kandidata za vozače
("Sl. glasnik RS", br. 104/2015)
Član 3
Ovaj pravilnik stupa na snagu osmog dana od dana objavljivanja u "Službenom glasniku Republike Srbije", a primenjuje se od 1. januara 2016. godine.
Samostalni član Pravilnika o izmenama i dopunama
Pravilnika o uslovima koje mora da ispunjava privredno društvo, odnosno ogranak privrednog društva ili srednja stručna škola koji vrše osposobljavanje kandidata za vozače
("Sl. glasnik RS", br. 77/2016 i 63/2017)
Član 16
Ovaj pravilnik stupa na snagu osmog dana od dana objavljivanja u "Službenom glasniku Republike Srbije", osim odredaba člana 4. ovog pravilnika koje se primenjuju po isteku 15 meseci od dana stupanja na snagu ovog pravilnika.
Samostalni član Pravilnika o izmeni
Pravilnika o uslovima koje mora da ispunjava privredno društvo, odnosno ogranak
privrednog društva ili srednja stručna škola koji vrše osposobljavanje kandidata
za vozače
("Sl. glasnik RS", br. 63/2017)
Član 2
Ovaj pravilnik stupa na snagu narednog dana od dana objavljivanja u "Službenom glasniku Republike Srbije".
Samostalni član Pravilnika o izmenama i dopunama
Pravilnika o uslovima koje mora da ispunjava privredno društvo, odnosno ogranak privrednog društva ili srednja stručna škola koji vrše osposobljavanje kandidata za vozače
("Sl. glasnik RS", br. 112/2017)
Član 2
Ovaj pravilnik stupa na snagu osmog dana od dana objavljivanja u "Službenom glasniku Republike Srbije".
Samostalni član Pravilnika o izmeni
Pravilnika o uslovima koje mora da ispunjava privredno društvo, odnosno ogranak privrednog
društva ili srednja stručna škola koji vrše osposobljavanje kandidata za vozače
("Sl. glasnik RS", br. 70/2018)
Član 2
Ovaj pravilnik stupa na snagu osmog dana od dana objavljivanja u "Službenom glasniku Republike Srbije", a primenjuje se od 26. oktobra 2018. godine.
GRAFIČKI PRIKAZ PROSTORA ZA IZVOĐENJE POLIGONSKIH RADNJI SA DIMENZIJAMA I NAČINOM OZNAČAVANJA

Slika 1. Prostor i oznake prostora za izvođenje poligonske radnje "vožnja po pravcu i zaustavljanje" (za osposobljavanje kandidata za vozače motornih vozila kategorija AM, A1, A2 i A)

Slika 2. Prostor i oznake prostora za izvođenje poligonske radnje "slalom vožnja" (za osposobljavanje kandidata za vozače motornih vozila kategorija AM, A1, A2 i A)

Slika 3. Prostor i oznake prostora za izvođenje poligonske radnje "vožnja putanjom u obliku broja 8" (za osposobljavanje kandidata za vozače motornih vozila kategorija AM, A2, A2 i A)

Slika 4. Prostor i oznake prostora za izvođenje poligonske radnje "kočenje i zaustavljanje" (za osposobljavanje kandidata za vozače motornih vozila kategorija AM, A1, A2 i A)

Slika 5. Prostor i oznake prostora za izvođenje poligonske radnje "vožnja napred sa promenom stepena prenosa i unazad sa promenom saobraćajne trake" (za osposobljavanje kandidata za vozače motornih vozila kategorija B1 i B)

Slika 6. Prostor i oznake prostora za izvođenje poligonske radnje "parkiranje vozila podužno, vožnjom unazad" (za osposobljavanje kandidata za vozače motornih vozila kategorija B1 i B)

Slika 7. Prostor i oznake prostora za izvođenje poligonske radnje "parkiranje vozila pod pravim uglom, vožnjom unazad" (za osposobljavanje kandidata za vozače motornih vozila kategorija B1 i B)

Slika 8. Prostor i oznake prostora za izvođenje poligonske radnje "polukružno okretanje vozila sa najviše tri potpuna manevra na prostoru širine dve saobraćajne trake" (za osposobljavanje kandidata za vozače motornih vozila kategorija B1 i B)

Slika 9. Prostor i oznake prostora za izvođenje poligonske radnje "zaustavljanje i polazak vozilom na putu sa usponom" (za osposobljavanje kandidata za vozače motornih vozila kategorija B1 i B)

Slika 10. Prostor i oznake prostora za izvođenje poligonske radnje "kočenje i zaustavljanje" (za osposobljavanje kandidata za vozače motornih vozila kategorija B1 i B)

Slika 11. Prostor i oznake prostora za izvođenje poligonske radnje "odvajanje i spajanje vučnog i priključnog vozila" (za osposobljavanje kandidata za vozače vozila kategorije BE)

Slika 12. Prostor i oznake prostora za izvođenje poligonske radnje "vožnja napred sa promenom stepena prenosa i unazad u istoj saobraćajnoj traci" (za osposobljavanje kandidata za vozače vozila kategorije BE)

Slika 13. Prostor i oznake prostora za izvođenje poligonske radnje "vožnja unazad sa skretanjem ulevo, odnosno udesno, pod pravim uglom" (za osposobljavanje kandidata za vozače vozila kategorije BE)

Slika 14. Prostor i oznake prostora za izvođenje poligonske radnje "vožnja napred sa promenom stepena prenosa i unazad sa promenom saobraćajne trake" (za osposobljavanje kandidata za vozače motornih vozila kategorija C1 i C)

Slika 15. Prostor i oznake prostora za izvođenje poligonske radnje "parkiranje vozila pod pravim uglom, vožnjom unazad, zbog utovara-istovara" (za osposobljavanje kandidata za vozače motornih vozila kategorija C1 i C)

Slika 16. Prostor i oznake prostora za izvođenje poligonske radnje "odvajanje i spajanje vučnog i priključnog vozila" (za osposobljavanje kandidata za vozače vozila kategorija C1E i CE)

Slika 17. Prostor i oznake prostora za izvođenje poligonske radnje "vožnja napred sa promenom stepena prenosa i unazad u istoj saobraćajnoj traci" (za osposobljavanje kandidata za vozače vozila kategorija C1E i CE)

Slika 18. Prostor i oznake prostora za izvođenje poligonske radnje "vožnja unazad sa skretanjem ulevo, odnosno udesno, pod pravim uglom" (za osposobljavanje kandidata za vozače vozila kategorija C1E i CE)

Slika 19. Prostor i oznake prostora za izvođenje poligonske radnje "zaustavljanje vozila na peronu, radi izlaska i ulaska putnika i polazak sa perona" (za osposobljavanje kandidata za vozače motornih vozila kategorija D1 i D)

Slika 20. Prostor i oznake prostora za izvođenje poligonske radnje "zaustavljanje vozila na autobuskom stajalištu, radi izlaska i ulaska putnika i polazak sa autobuskog stajališta" (za osposobljavanje kandidata za vozače motornih vozila kategorija D1 i D)

Slika 21. Prostor i oznake prostora za izvođenje poligonske radnje "odvajanje i spajanje vučnog i priključnog vozila" (za osposobljavanje kandidata za vozače vozila kategorija D1E i DE)

Slika 22. Prostor i oznake prostora za izvođenje poligonske radnje "vožnja napred sa promenom stepena prenosa i unazad u istoj saobraćajnoj traci" (za osposobljavanje kandidata za vozače vozila kategorija D1E i DE)

Slika 23. Prostor i oznake prostora za izvođenje poligonske radnje "vožnja unazad sa skretanjem ulevo, odnosno udesno, pod pravim uglom" (za osposobljavanje kandidata za vozače vozila kategorija D1E i DE)

Slika 24. Prostor i oznake prostora za izvođenje poligonske radnje "odvajanje i spajanje vučnog i priključnog vozila" (za osposobljavanje kandidata za vozače vozila kategorije F)

Slika 25. Prostor i oznake prostora za izvođenje poligonske radnje "vožnja napred sa promenom stepena prenosa i unazad u istoj saobraćajnoj traci" (za osposobljavanje kandidata za vozače vozila kategorije F)

Slika 26. Prostor i oznake prostora za izvođenje poligonske radnje "vožnja unazad sa skretanjem ulevo, odnosno udesno, pod pravim uglom" (za osposobljavanje kandidata za vozače vozila kategorije F)

Slika 27. Prostor i oznake prostora za izvođenje poligonske radnje "vožnja napred sa promenom stepena prenosa i unazad u istoj saobraćajnoj traci" (za osposobljavanje kandidata za vozače motornih vozila kategorije M)

Slika 28. Prostor i oznake prostora za izvođenje poligonske radnje "kočenje i zaustavljanje" (za osposobljavanje kandidata za vozače motornih vozila kategorije M)
IZGLED "L" TABLICE I TABLE ZA OZNAČAVANJE VOZILA I OZNAKE ZA OZNAČAVANJE PRSLUKA ZA PRAKTIČNU OBUKU KANDIDATA ZA VOZAČE
|
|
|
Slika 1. Izgled "L" tablice za označavanje vozila kategorija AM, A1, A2 i A |
|
Slika 2. Izgled "L" tablice za označavanje vozila kategorija B1, BE, C1, C1E, C, CE, D1, D1E, D, DE, M i F |

Slika 3. Izgled table za označavanje vozila kategorije B

Slika 4. Izgled oznake koja se postavlja na svetloodbojnom prsluku, koji koristi kandidat za vozača motornih vozila kategorije AM, A1, A2 i A, odnosno B1 ukoliko vozilo nema kabinu
RAČUNARI ZA OSPOSOBLJAVANJE KANDIDATA ZA VOZAČE
(konfiguracija, operativni sistem, brzina internet veze)
Preporučena minimalna konfiguracija računara i operativni sistem |
|
CPU |
Intel Core i3 (ili sličnih karakteristika proizvođača AMD) |
RAM |
4 GB |
HDD |
250 GB |
Operativni sistem |
Obavezan Windows 7 operativni sistem, verzija najmanje "Professional", odnosno Windows 8 operativni sistem sa opcijom: "downgrade" (prelaza) na Windows 7 |
Mrežna kartica |
Obavezna |
Čitač elektronskih dokumenata |
Obavezan |
Brzina internet veze u zavisnosti od broja računara za teorijski ispit |
||
Broj računara na kojima se polaže teorijski ispit |
Brzina |
|
download |
upload |
|
do 5 |
5 Mb/s |
1 Mb/s |
6-10 |
10 Mb/s |
1 Mb/s |
11-15 |
15 Mb/s |
1 Mb/s |
16-20 |
20 Mb/s |
1 Mb/s |
21-25 |
25 Mb/s |
1 Mb/s |
26-30 |
30 Mb/s |
1 Mb/s |
.... |
.... |
.... |
AUDIO-VIDEO SISTEM
(minimalni uslovi)
Minimalni ulovi za elemente audio-video sistema |
|
Kamera |
Kolor HD kamera |
Obavezna mogućnost daljinskog povezivanja |
|
Obavezno integrisan mikrofon ili mogućnost za priključivanje mikrofona |
|
Uređaj za snimanje |
Obavezne karakteristike koje podržavaju rad kamera ne umanjujući kvalitet snimljenog materijala |
Instalacija |
|
Komunikaciona oprema |
|
Monitor |
Obavezan |
Audio-video zapis |
Obavezna zaštita tipa "watermark" |











